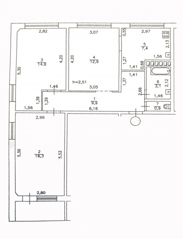
3-кімн. кв., 69 м², 12/12 поверх
72 000 USDКиїв, Святоштнський.Новобілічі, МУдрака/Наумова/, 31А • На мапі
м-ро Академмістечко
Кімнат3 роздільні
Площа69 м²
Житлова44 м²
Кухня8 м²
Поверх12 з 12
Продаж! Без комісії! Мудрака/Наумова/31А! М-ро Академмістечко!
Без комісії! Продається простора, затишна 3-кімнатна квартира без меблів на вул Олега Мудрака/ Генерала Наумова/, 31А у Святошинському р-ні (Новобіличі), метро Академмістечко 7 хв. на маршрутці. Дім панельний, 12-поверховий, у нормальному технічному стані. Квартира розташована на 12 поверсі, з вікон - мальовничі краєвиди, встановлена сигналізація, вікна металопластикові (двокамерні), замінені труби водопостачання, електропроводка, сантехніка. Два кондиціонери, лічильники на воду. Підлога - ламінат, висота стелі 2, 5 м, кімнати роздільні, просторі, санвузол роздільний, загальна площа 69 м2, житлова 44 м2 кухня 8 м2. Тихий двір, доброзичливі сусіди, поруч ліс, супермаркети, навчальні та медичні заклади. Ціна 72 000 Usd. Ксенія,.
БалконТак, 1
Вікна виходятьУ двір
Роздільний санвузолТак, 1
РемонтЄвро
ОпаленняЦентральне
Горяча водаЦентральна
Тип об'єктуОкрема квартира
Тип проектуПанельний
ПандусНемає
Id оголошення796219
Поділитися
72 000 $
























